发表于:2014/6/19 21:53:39
#30楼
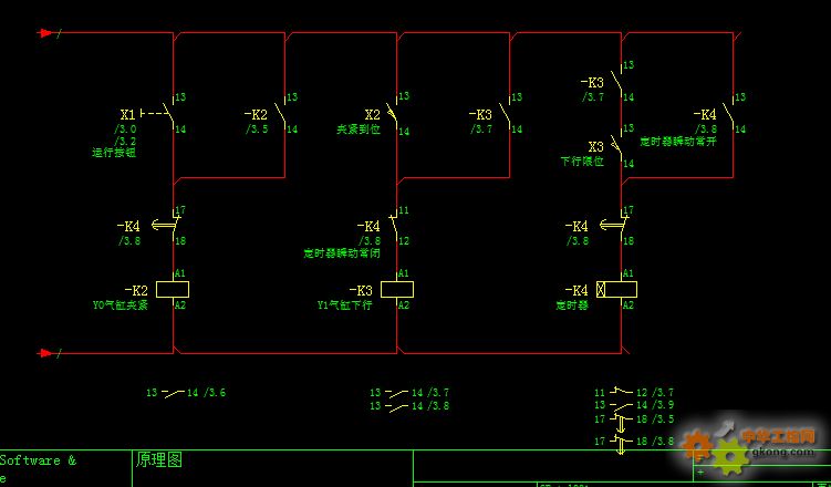
如果你想验证我所说是否有道理,你可将T2(6#点)线圈改接到M1自锁触点(5#点)处,M1自锁触点断开,T1才同时失电,T1延时断开常闭触点才能复位。
[此贴子已经被作者于2014/6/19 21:55:57编辑过]







