返回工控网首页
|
| 添加到收藏夹
中国自动化学会专家咨询工作委员会指定宣传媒体
免费注册
广告服务
|
客服中心
您现在所在的是:
PLC论坛
工控论坛首页
→
PLC论坛
→ 浏览主题:
松下高速计数问题
回帖:
0
个,阅读:
554
次
[上一页]
[1]
[下一页]
* 帖子主题:
松下高速计数问题
收藏
分享到
50
龚钒
文章数:
1
年度积分:
50
历史总积分:
50
作者的所有帖子(1)
注册时间:
2019/8/5
发站内信
发表于:2020/3/20 15:35:56
#0楼
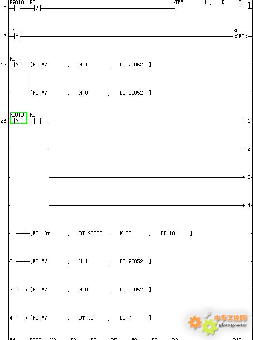
利用的是下降沿,寄存器没有数值反馈
2分悬赏
【方案】
BCNet-S7PPI桥接型在纺机设备联网中的应用
只看该作者
|
赞
[0]
|
踩
[0]
|
引用
|
回复
|
编辑
|
推荐
|
举报
|
结帖
|
管理
工控学堂推荐视频:
PLC学习视频
变频器学习视频
西门子学习视频
三菱学习视频
更多学习视频>>
•
[视频课程]一个小时教你学会升降输送系统编程方法
•
[视频课程]零基础快速入门西门子S7-1500PLC
•
[视频课程]西门子S7-200SMART如何快速找回原点
•
[视频课程]三菱PLC程序进制转化你懂了吗
•
[视频课程]台达DVP系列入门精讲
•
[视频课程]七节课带你全面认识西门子S7-1200
•
[视频课程]西门子S7-1500TCPU应用
•
[视频课程]西门子S7-1200与欧姆龙温控仪表的自由口通信
•
[视频课程]西门子S7-200SMART带参数子程序使用详解
31.2002