返回工控网首页
|
| 添加到收藏夹
中国自动化学会专家咨询工作委员会指定宣传媒体
免费注册
广告服务
|
客服中心
您现在所在的是:
AutoCAD Electrical
工控论坛首页
→
AutoCAD Electrical
→ 浏览主题:
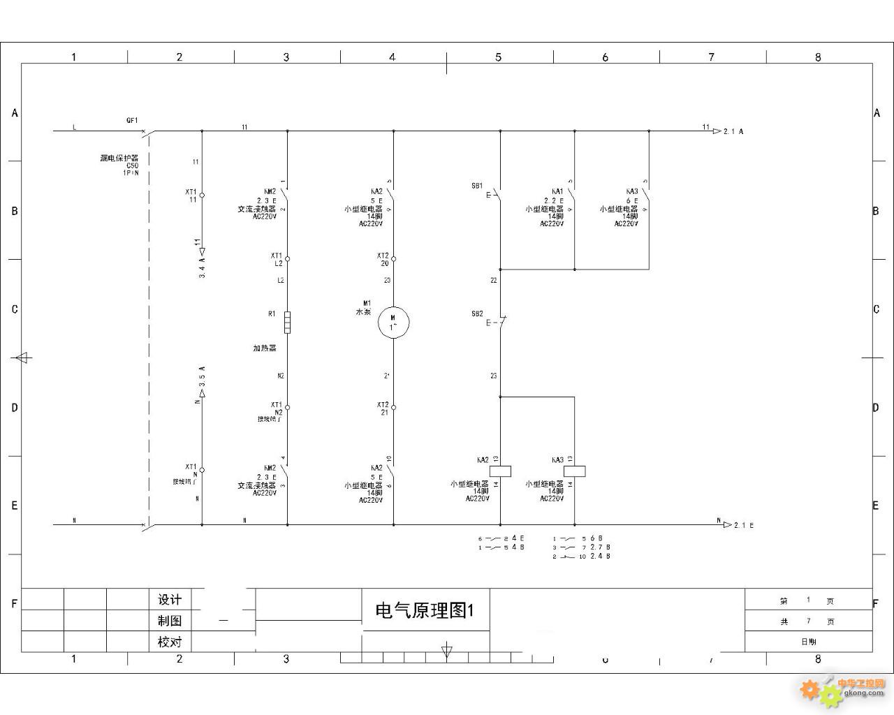
应版主和各位老师的要求,我就献丑了,还请大家指正不足之处
回帖:
8
个,阅读:
1920
次
[上一页]
[1]
[下一页]
* 帖子主题:
应版主和各位老师的要求,我就献丑了,还请大家指正不足之处
收藏
分享到
7852
机栝
文章数:
1021
年度积分:
110
历史总积分:
7852
作者的所有帖子(1021)
注册时间:
2017/6/12
发站内信
发表于:2019/6/28 10:07:00
#0楼
原理图和接线图各一张
知行合一。
【方案】
基于 PC 的楼宇自动化解决方案助力打造数字孪生平台
只看该作者
|
赞
[0]
|
踩
[0]
|
引用
|
回复
|
编辑
|
推荐
|
举报
|
结帖
|
管理
20956
产品体验中心会员
jinqiaoma
文章数:
5454
年度积分:
50
历史总积分:
20956
作者的所有帖子(5454)
注册时间:
2009/5/15
发站内信
2018论坛热心网友
发表于:2019/6/28 10:44:25
#1楼
KM1和KA2的第一组触点上面线号应该一样的吧?
【方案】
坐落于著名的南非花园大道中心地带的Oubaai高尔夫庄园
只看该作者
|
赞
[0]
|
踩
[0]
|
引用
|
回复
|
编辑
|
推荐
|
举报
|
管理
7852
机栝
文章数:
1021
年度积分:
110
历史总积分:
7852
作者的所有帖子(1021)
注册时间:
2017/6/12
发站内信
发表于:2019/6/28 10:46:45
#2楼
回复 #1楼 jinqiaoma
线上的是线号,触点上的是产品自带的触点号
知行合一。
【方案】
三菱加工机 | 无屑加工使用方法(视频教学)
只看该作者
|
赞
[0]
|
踩
[0]
|
引用
|
回复
|
编辑
|
推荐
|
举报
|
管理
23583
产品体验中心会员
gk_0
版主
文章数:
7743
年度积分:
72
历史总积分:
23583
作者的所有帖子(7743)
注册时间:
2013/9/9
发站内信
2018论坛贡献奖
2017论坛贡献奖
2017国庆活动(二)
2016论坛贡献奖
2016国庆活动(三)
英威腾变频器(一)
S7-200 SMART(一)
寻找英威腾(三)
英威腾PLC体验(一)
2015春节活动
2013辞旧迎新
2013辞旧迎新
2013国庆活动
发表于:2019/6/28 11:11:07
#3楼
以下是引用
机栝
在
2019/6/28 10:46:45
的发言:
线上的是线号,触点上的是产品自带的触点号
EPLAN叫设备连接点代号
不被人嘲笑的梦想,就不值得去追求!
【方案】
双强联合!Exx系列热像仪+双视场镜头,检测效率再升级
只看该作者
|
赞
[1]
|
踩
[0]
|
引用
|
回复
|
编辑
|
推荐
|
举报
|
管理
24288
产品体验中心会员
mengx9806
文章数:
11144
年度积分:
50
历史总积分:
24288
作者的所有帖子(11144)
注册时间:
2011/5/16
发站内信
2018论坛热心网友
2018春节活动(三)
工控人谈电商
发表于:2019/6/28 11:31:30
#4楼
果然,专业的画图软件就是不一样,强大!
喜欢一句广告语:世界再大,也大不过我35码半的脚步。但是我的世界里,如何才能追到那
逝去的青春年华?
【方案】
图尔克—紧凑的控制柜确保了高度的信息安全性
只看该作者
|
赞
[0]
|
踩
[0]
|
引用
|
回复
|
编辑
|
推荐
|
举报
|
管理
20956
产品体验中心会员
jinqiaoma
文章数:
5454
年度积分:
50
历史总积分:
20956
作者的所有帖子(5454)
注册时间:
2009/5/15
发站内信
2018论坛热心网友
发表于:2019/6/28 11:58:05
#5楼
回复 #2楼 机栝
不是触点号,11和1后面带的什么看不清的那个。
此帖发自论坛手机版
【方案】
华北工控语音识别系统产品方案,支持个性化智能家居控制!
只看该作者
|
赞
[0]
|
踩
[0]
|
引用
|
回复
|
编辑
|
推荐
|
举报
|
管理
7852
机栝
文章数:
1021
年度积分:
110
历史总积分:
7852
作者的所有帖子(1021)
注册时间:
2017/6/12
发站内信
发表于:2019/6/28 13:29:58
#6楼
回复 #5楼 jinqiaoma
点一下图片进去就能看清楚了
知行合一。
【方案】
数字化金融监管,华北工控可提供国产自主可控嵌入式计算机助力
只看该作者
|
赞
[0]
|
踩
[0]
|
引用
|
回复
|
编辑
|
推荐
|
举报
|
管理
50
诚邦
文章数:
191
年度积分:
50
历史总积分:
50
作者的所有帖子(191)
注册时间:
2019/4/22
发站内信
发表于:2019/6/28 16:38:17
#7楼
什么软件画的?
【方案】
同FLIR合作一起通过互联网对抗火灾
只看该作者
|
赞
[0]
|
踩
[0]
|
引用
|
回复
|
编辑
|
推荐
|
举报
|
管理
50
ihc99332
文章数:
11
年度积分:
50
历史总积分:
50
作者的所有帖子(11)
注册时间:
2019/5/8
发站内信
发表于:2019/6/28 19:18:14
#8楼
回复 #7楼 诚邦
EPLAN
【方案】
图尔克RFID方案 | 实现生产管理实际数据全面监测
只看该作者
|
赞
[0]
|
踩
[0]
|
引用
|
回复
|
编辑
|
推荐
|
举报
|
管理
工控学堂推荐视频:
PLC学习视频
变频器学习视频
西门子学习视频
三菱学习视频
更多学习视频>>
•
[视频课程]电工进阶电气工程师的一百种可能
•
[视频课程]你还不会电机正反转电路吗
•
[视频课程]三节课掌握星三角程序编写
•
[视频课程]电工如何快速入门PLC
•
[视频课程]十年老电工实操系列之从小白到超越中级
•
[视频课程]低压电工考证实操教程之电机控制接线实操
•
[视频课程]应用中的电动机控制与保护元器件选择
•
[视频课程]老司机带你玩转电工仪器仪表
•
[视频课程]电工操作证实操--科目二
78.0005